Artist Live-Work

 

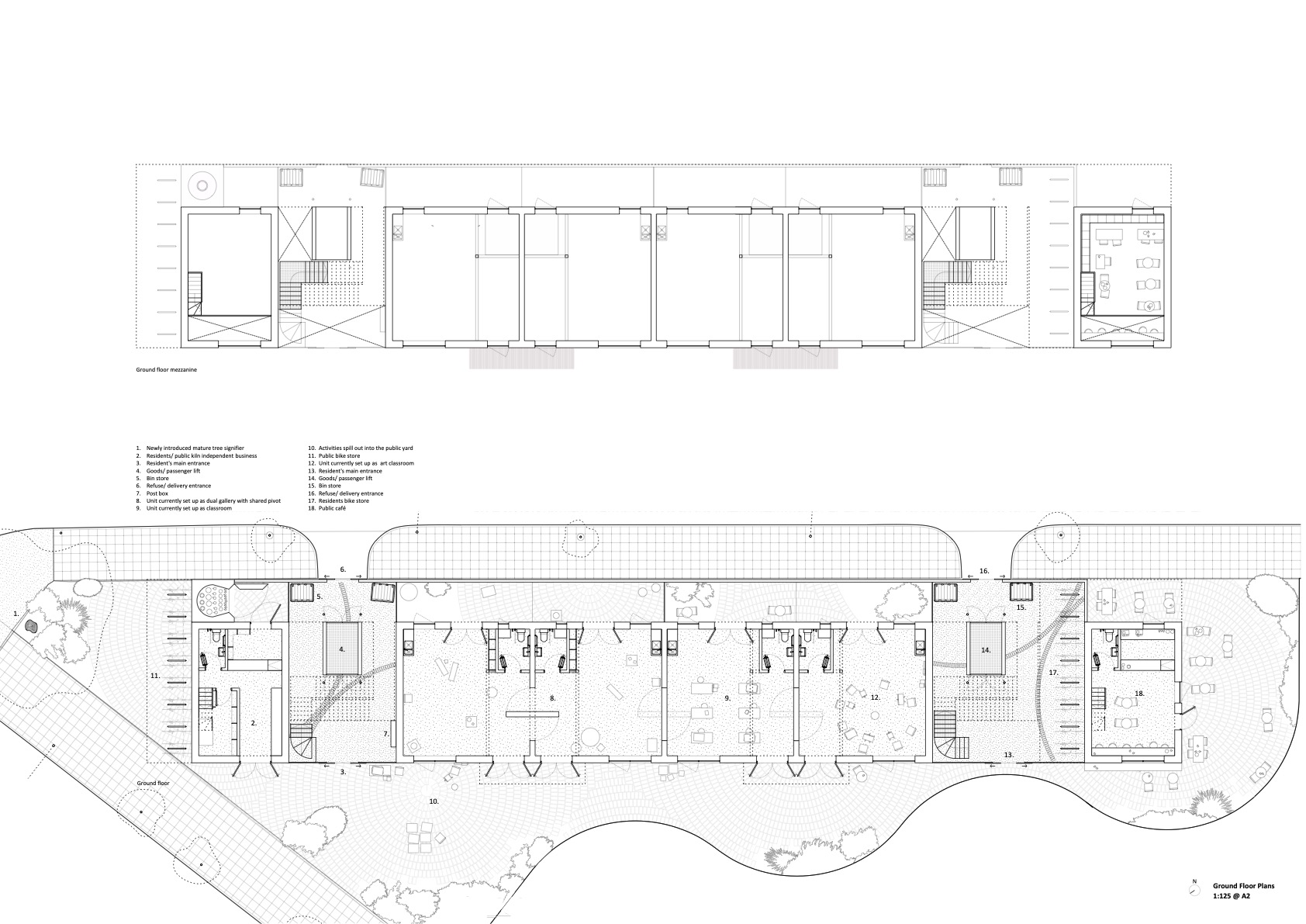
With a focus on low initial cost, and gradual transformation into homes by residents through knowledge-sharing and hands-on learning, our feasibility study for a Cross Laminated Timber structure in Hackney, East London.

Inspired by research into warehouse living and adaptive use, the cost was greatly reduced by minimising fit-out on ‘day one’, allowing residents to move into reduced rent or reduced cost life/ work units, and gradually enrich their space through personalised additions funded by savings from reduced outgoings.

 

Double-height units are acoustically separated from each other, reducing disruption whilst allowing for simple additions to add a mezzanine floor. The entire scheme is also fully accessible, with level access and generous doorways both for receiving deliveries of tools and materials, aswell as for ease of access by wheelchair users.

Careful consideration was given to additional fire risks posed by live/ work timber units, beyond minimum requirements imposed by Building Regulations, and a series of new green spaces provides private resident’s retreats, public squares, and encourages new wildlife habitats in a dense urban context.

 

The plants were imagined as an urban ‘wild meadow’, the greenery is used to soften edges and offer habitats to local wildlife, whilst offering privacy and sense of belonging to the occupants by anchoring new buildings within the tapestry of the city. The hardscaping was localised to required areas eg entrances and the foundation for a local market, but broke down to gentle winding pathways between the blocks, disintegrating into the long grass in areas that residents could play and rest.

Chosen to flower at different dimes of year, and include some hardy evergreens, each was chosen to be low maintained and hardwearing whilst offering varied benefits to local insects. The neighbouring scheme was intended to house several Syrian refugee families, so plants native to that area were included were possible with the British climate to bring familiar scents, including Jasmine in honour of ‘The city of Jasmine’ Damascus…

artist live work poacea 02 © dan stilwell
artist live work poacea 01 © dan stilwell